微波真空干燥機結構簡圖
微波真空干燥機主要有三種設計的結構:
第一種是小型的轉盤式設計:
這一款轉盤式設計的微波真空干燥機體積小,單層轉盤,可以用于小批量的產品干燥,也可以用于實驗室的實驗烘干。其工作原理是在一個不銹鋼結構的箱內安裝一個轉盤,在轉盤上放置物料,然后抽真空,開微波進行干燥。設備帶有溫度檢測系統,真空檢測系統,多階段控制,功率和時間可調。
主要由以下幾個部分組成:
●設備外框支架、真空泵機組、微波電源、微波磁控管、轉盤電機、物料盤、微波真空干燥箱、物料進出門、監視器、觸摸屏控制系統、排熱系統等。
轉盤式微波真空干燥機結構圖如下:

第二種微波真空干燥機是屬于吊籃式的設計結構,里面可以放一組或者兩組吊籃系統,整天鋪料面積有6.5平方米。
工作原理是在一個臥式的不銹鋼罐上安裝微波系統,在罐體兩側安裝軸承座,橫穿一條軸轉動,吊籃框固定在軸上面轉動,物料盤放置在吊籃框里面轉動。在抽真空的時候開微波進行對物料加熱干燥。整機系統采用觸摸屏控制,可以設置6個階段的微波功率選擇,真空度選擇,溫度選擇控制。
主要組成系統有:
微波真空干燥罐、抽真空系統、觸摸屏控制系統、監視器、吊籃軸、吊籃轉動電機、物料進出門、觀察窗口、自動排水系統、水冷卻系統、吊籃系統、物料盤、冷凝器系統等。
吊籃式微波真空干燥機的結構圖如下:

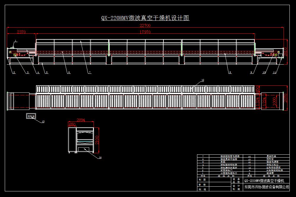
第三種設計的微波真空干燥機結構是屬于輸送帶輸送類型的微波真空干燥設備。
工作原理是在一個長長的隧道式的真空干燥箱內安裝一條輸送帶,輸送帶可以是特氟龍布面輸送帶,也可以是工程塑料鏈板輸送帶,采用布面輸送帶的時候可以將物料直接放置在輸送帶上面進行干燥。采用鏈板輸送帶的時候就需要將物料放置在物料盤里面,再放到輸送帶上進行干燥,輸送帶在微波真空烘干箱內往返運動,增加物料吸收微波的均勻性。
這種設計可以用于物料比較多的產品,鋪料面積可以達到20平方米以上。前后雙開門設計,前后都可以進出物料。
主要組成系統有:
微波真空干燥箱、抽真空系統、觸摸屏控制系統、監視器、皮帶輸送系統、傳送帶轉動電機、物料進出門、觀察窗口、自動排水系統、水冷卻系統、輸送帶、物料盤,冷凝器系統。
輸送帶輸送類型的微波真空干燥機結構圖如下:

東莞市齊協微波設備有限公司專業生產定做各種規格微波真空干燥機:有吊籃式微波真空干燥設備,內循環輸送帶微波真空烘干設備,箱式轉盤微波真空烘干箱;整體設備是不銹鋼制造,自動化控制,歡迎定制,咨詢電話:13544892266 ,戴先生。

13544892266
傳真:0769-85388283
東莞市齊協微波設備有限公司
郵箱:dgqixie@163.com
網址:www. weiboshebei.cn
電話:13544892266/0769-85388009
地址:廣東省東莞市長安鎮霄邊第四工業區正龍路4號1棟1樓
咨詢微信二維碼
Copyright ©東莞市齊協微波設備有限公司 All rights reserved
備案號:粵ICP備2024334771號-2